How we Automated Scan to BIM using Machine Learning
The process of converting Point Cloud Data into BIM is like an endless process if the client makes you change the model again and again. Because as a technical person, I feel that executing the Scan to BIM process is a huge task that requires a lot of manual work, working hours and countless dedication of a team. Scan to BIM is not just a 3-step process but is a long sequence of tasks that takes a few weeks to complete. But now, I got a permanent solution for this lengthy and tedious process which is Automation.
Yes! Automation has changed the complete picture of Scan to BIM workflow because the addition of Machine Learning in it is like the magic of saving up to 50% of project time. I think a lot of us who are working in the AEC industry are thankful for this innovation which is helping us to maintain the quality and reduce the rework in this process. Machine learning signifies the learning ability of software and improvising the supremacy of decision-making over time. I have experienced many benefits of Automated Scan to BIM and here I am mentioning a few of them:
- It makes laborious and time-consuming tasks easier with quick, and accurate
- It provides reliable output, enhances productivity, saves time, and offers robust deliverables
- It saves costs for rework and related work.
- ML-based Scan to BIM guarantees resourceful, modified, and real solutions.
- It helps to detect risks through predictive analytics and to eliminate different risks.
- Its output is compatible with any BIM application.

All these features of Automated Scan to BIM help to make the process smooth and productive. But do you know what exactly can be automated in the Scan to BIM workflow? I will explain it briefly to understand the basic role of Machine Learning in Scan to BIM.
What Machine Learning is automating in Scan to BIM?

ML is powering different stages of Scan to BIM workflow to perform a task in the minimum possible time and to get the most precise outcomes. Let’s take a look at the process and the impact of automation on the process which we are experiencing daily.
- Format Automation

Making and deciding formats while performing Point Cloud data conversion is the first but most important step in the Scan to BIM workflow which helps to arrange the data in specific formats. Every software has its own formats which are defined and forced to use while making models. These formats can be set by the modeler once starting the work and it will be then followed every time in format automation. This helps to get direct output/expected design on the screen with suitable and proper arrangement.
The role of Machine Learning:
After setting the format initially, Machine Learning helps to fetch that data directly and provides the expected design on the screen. No need to arrange that format every time while making models. Automation in this stage helps to save time and effort in arranging the data in the defined format and making changes in the design.
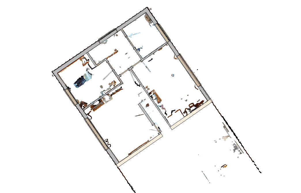
- Point Cloud Clean-up
The output of the 3D scanning includes all the objects which are present in the location and scanned output/point cloud data involves detailed data of those objects which are referred as entities. Excluding the actual structure of the building, present entities are not required for creating the 3D model, and hence it is essential to clean from the data which is known as Point Cloud Clean-up. While creating a 3D model, the modeler needs to remove all unwanted entities by separating them into relevant formats and need to extract what exactly they require. To work on a specific part of the building it is mandatory to remove unwanted entities and objects from that part to get precise converted images.
The role of Machine Learning:
In any software, the modeler needs to create a list of different types of entities where they can include entities that are available in the scanned data. Rather than sorting entities every time, the modeler can directly sort them from the point cloud data. Machine Learning in this step helps to remove unwanted entities by separating them and allows the modeler to extract only what they need or expect. Automation in Point Cloud Clean-up helps to save a lot of time, avoid confusion in models, benefits to getting precise models with accurate measurements, and most importantly saves manual efforts as well as work hours of separating and removing entities.
- Point Cloud Alignment

While scanning any site, it is required to set a center of the location or an angle of the scanning. This helps the modeler to make the design conveniently and to start the conversion from the one point of the design. The Center of alignment can be decided by the person who is scanning or by the client. While making models modelers can check the design from any alignment to check the view and adjustment of the design.
The role of Machine Learning:
ML can directly present that design as per the demanded alignment. The modeler can check that design as per set alignment or as per the alignment demanded by the client. Without adjusting and reframing the design modeler can get different alignments with a single click. This saves a lot of manual effort and time for adjusting the alignments while scanning.
- Entities Identification
As point cloud data includes all entities which are present in the scanned area and for making a 3D model it is a must to highlight those entities in different colors for easy understanding. In the initial stage, the modeler needs to segregate the entities into different types so that they can separate them into suitable categories. Once the modeler creates the entity set then they can add entities in the relevant group.
The role of Machine Learning:
Machine Learning saves time for the identification and segregation of the entities in the relevant sets and helps categorize the entities automatically. As per the created groups of the entities, ML helps to segregate present entities into suitable groups so that modelers can directly remove, separate, or add to the design.
- Revit Automation
Revit automation is making design-related things automatically without any human interface. In this final stage of Scan to BIM workflow, the modeler works on the detailing parts of the model. For example- for working on the walls, the modeler extracts walls from the point cloud data to find the start and endpoint of the wall for measuring the length and get right and left alignment for measuring the thickness of the wall. Sorting the part of the building into the required structure takes a lot of time and concentration.

The role of Machine Learning:
Machine Learning helps to get that required data with just a single click. ML enables to make this process automated by getting the essential structure from the point cloud data without a human interface. This not only saves time but benefits maintaining accuracy in the 3D model and also minimizes the efforts in taking measurements.
Conclusion:
So, these are the impacts of Machine Learning on Scan to BIM workflow which are making it more comfortable and convenient to use. By leveraging the potential of machine learning, technical professionals like me are getting enough time to focus on other factors which are not involved in the process like minor detailing of design, coordination with clients, and observing the critical details of the process. Implementing automated Scan to BIM is like solving 40-50% of the issues of modeling.
In fact, nCircle Tech offers automated Scan to BIM to save your time, cost, and maintain accuracy. We are just a call away from you, so connect with our experts now and get a perfect solution for making precise 3D BIM models and reducing the workload of your team.
